CLIENTE

VERTIX 

GRUP INMOBILIARI

DIRECCIÓN CREATIVA

SANDRA TARRUELLA INTERIORISTAS

OLGA PAJARES (PROJECT MANAGER)

SUPERFICIE

2.600m2

FOTOGRAFÍA

SALVA LÓPEZ

Hotel Sabàtic
Sitges, 2022

El diseño del Hotel Sabàtic en Sitges, bajo la firma Autograph Collection de Marriott, tenía un objetivo claro: encontrar el equilibrio entre una estética vacacional y un aire urbano, sin caer en lo veraniego ni lo playero. El proyecto debía dialogar con el contexto residencial de Sitges y, al mismo tiempo, mantener una identidad abierta durante todo el año.

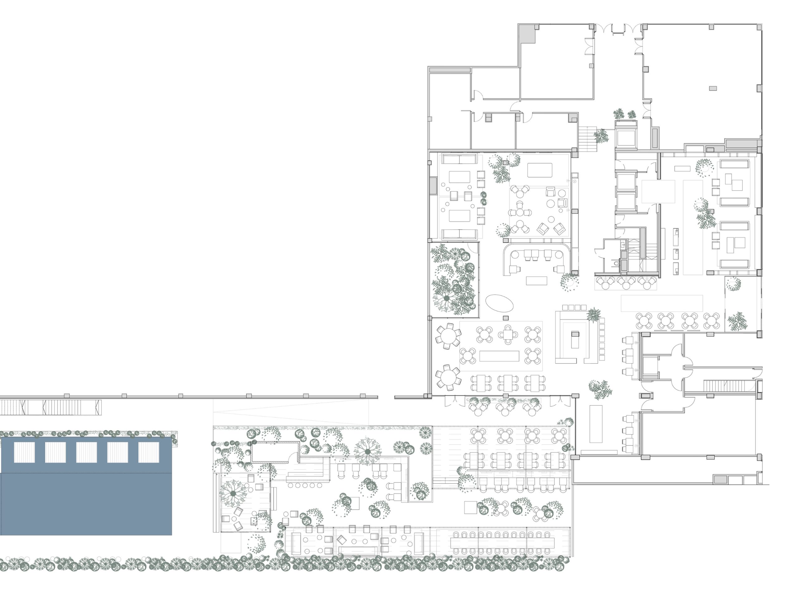
La planta baja se concibe como un espacio conectado y sofisticado. La gran altura de entrada genera una sensación de magnificencia, mientras que el mostrador de piedra natural y un mural lacado satinado marcan el acceso a las plantas de habitaciones. Para filtrar visuales y aportar privacidad, se incorporaron librerías-celosías que enmarcan los salones y crean transiciones suaves. El mobiliario a medida —sofás de Perobell y butacas Kata de Arper—, junto con alfombras de Cumelles en tonos cálidos, evocan una estética vacacional europea. Una barra central conecta visualmente todos los espacios y abre paso al patio inglés, lleno de vegetación, luz y frescura.

El restaurante y la terraza exterior se integran visualmente gracias al uso continuo del pavimento de piedra natural. Para proteger del sol, pérgolas metálicas con lamas de madera aportan elegancia y confort. En el jardín, los bancos de piedra y las camas de día con cojines tapizados prolongan la atmósfera interior hacia el exterior, generando rincones de privacidad y descanso. Un bar de microcemento se convierte en epicentro social, donde barman, cocktelero y DJ comparten escenario para crear un ambiente distendido y vibrante.

Las habitaciones transmiten frescura y funcionalidad. Paredes en tonos arena y el uso de madera natural en suelos y techos aportan calidez, mientras que los muebles multifuncionales optimizan el espacio sin sacrificar fluidez. Los baños, revestidos en gres que se asemeja a piedra abujardada, envuelven suelos, paredes y lavamanos en una misma textura, acentuados por marcos de madera y detalles artesanales en papel. Grandes obras gráficas refuerzan la esencia vacacional y convierten cada estancia en un refugio. El Hotel Sabàtic logra así un ambiente de calma, luz y sofisticación que se adapta a cualquier época del año.

1/1