CLIENT / ISERN ASSOCIATS ARQUITECTURA OSCAR TUSQUETS ARTISTA SUPERFÍCIE 14.500m2 FOTOGRAFIA JORGE DE JORGE JORDÁN
 ALICIA GARCÍA INFOGRAFIA RECTORIA 3D

PRINCESS HOTELS

DIRECCIÓ CREATIVA

ISERN ASSOCIATS / OLGA PAJARES

ARTISTA

RAMÓN DE LOS HEROS

SUPERFÍCIE

14.500m2

FOTOGRAFIA

JORGE DE JORGE JORDÁN

ALICIA GARCÍA

INFOGRAFIA

RECTORIA 3D

Hotel Barcelona

Princess, 2024

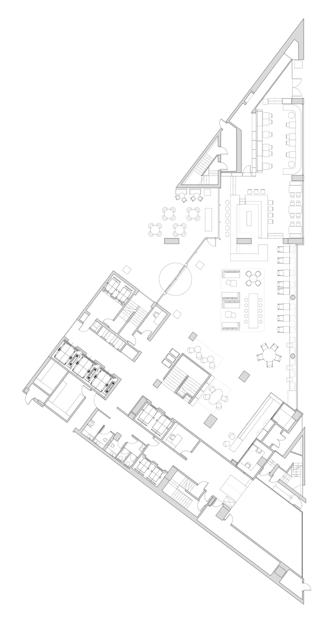
REPTE

Reformular l’interiorisme de l’Hotel Barcelona Princess ha estat un repte que hem assumit amb respecte. L’edifici comptava amb un projecte original d’Òscar Tusquets, i la nostra intervenció busca actualitzar-ne els espais sense perdre’n l’essència.
Conservant l’envolupant arquitectònica original —en tons taronges i blaus, acer, formigó i vidre— vam decidir reinterpretar aquesta paleta com a fil conductor. Cada una de les dues torres de l’hotel es tenyeix d’un d’aquests colors, que s’apliquen de manera contundent i sectorial: habitacions completament blaves o terracota, segons la torre en què es troben. El color no només decora: organitza i dóna identitat.

IDENTITAT CROMÀTICA

Les habitacions es van dissenyar com a espais funcionals però càlids, amb una distribució oberta i materials coherents: melamines, tèxtils, paper pintat, rajoles i lavabos a mida, tot dins d’una mateixa gamma tonal. Alguns elements del projecte original s’han mantingut i reinterpretat, com la cadira Gaulino o la lluminària Tolomeo.

VIURE ELS ESPAIS

La planta baixa, abans compartimentada, es converteix ara en un espai obert i fluid, on els diferents usos —recepció, vestíbul, bar i restaurant— s’organitzen segons l’ombra cromàtica projectada per cada torre. La barra central articula el conjunt, adaptant-se als desnivells del paviment (parquet i rajola de terracota artesanal) i oferint diferents maneres d’habitar l’espai: treballar, esperar, reunir-se o simplement passar-hi.

CONNEXIÓ URBANA

La recepció, a la zona blava, es dissenya amb un sostre més baix, materials nobles i detalls cuidats, mentre que el vestíbul i el bar, a la zona terracota, s’obren a la ciutat amb naturalitat. Des de l’exterior, tot és visible: l’hotel es mostra, es connecta amb el barri, esdevé part activa del seu entorn.

1/1